- 易迪拓培训,专注于微波、射频、天线设计工程师的培养
一种小型化窄波束圆极化天线
技术领域
本发明涉及RFID应用技术领域,特别涉及一种小型化窄波束圆极化天线。
背景技术
射频识别是一种非接触式的自动识别技术。在RFID(Radio Frequency Identification,射频识别)系统中,识别信息存放在电子数据载体中,电子数据载体成为应答器。应答器中存放的识别信息由阅读器读出,在一些应用中,阅读器不仅可以读出存放的信息,而且可以对应答器写入数据,这种读写操作是通过双方之间的无线通信来实现的。微带天线作为RFID系统中常用的定向天线形式,对RFID的发展和应用有着极其重要的意义。
从微带天线的概念提出以来,由于它具有结构简单、体积小、重量轻、低剖面、易与载体共形等优点,已广泛的应用于卫星通信、雷达、射频识别、导航等领域。其中圆极化微带天线又因其能够接受任意极化的来波且其辐射的圆极化波可以被任意极化的天线所接收的优点而越来越受到青睐。微带天线产生圆极化波的关键是产生幅度相等,相位相差90度的两个相互正交的线极化波,即产生两个在空间和时间上都正交的线极化波。
为达到上述要求,圆极化微带天线在结构上主要可以分为以下三种形式:单点馈电、双点馈电或四点馈电。其中单点馈电圆极化微带天线结构最为简单,但缺点是轴比带宽较窄,实用性不强;双点馈电可以不同程度地扩展圆极化轴比带宽,但都采用了多层结构,破坏了天线的低剖面性;四点馈电的天线又由于其复杂性和不稳定性,使用率较低。
发明内容
本发明的目的在于,克服单点馈电导致的带宽窄的缺点,提供一种宽轴比带宽、小型化、结构简单、性能稳定的小型化窄波束圆极化天线。
为实现上述目的,本发明采用以下技术方案:
一种小型化窄波束圆极化天线,包括绝缘介质板、位于绝缘介质板正面的馈电网络、位于绝缘介质板背面的金属底板、以及安装于绝缘介质板正面且与馈电网络连接的八个金属辐射阵子;
所述馈电网络具有一个输入端和八个输出端,包括若干个相互连接的功分器和移相器,用于将从输入端输入的信号转化为两个四路等幅、相位差依次为90度的信号,分别从八个输出端输出给八个金属辐射阵子;
所述金属底板为覆铜层,连接到地;
所述金属辐射阵子为PIFA形式的阵子。
优选地,所述馈电网络的输入端通过SMA探针馈电或通过同轴线焊接馈电。
优选地,所述四个金属辐射阵子在所述对称馈电网络上方沿顺时针或逆时针方向围成一正方形,其中心为绝缘介质板的中心。
优选地,所述馈电网络包括第一级阻抗变换电路、第二级电路移相电路
其中阻抗变换电路由50欧姆延长线与70欧姆四分之一波长阻抗变换线组成。
第二级电路移相电路由共面波导线与耦合器组成,通过第一级阻抗变换电路连接耦合器,进行功率等分相位移相90度后通过两段共面波导线分别移相功分至0度、90度、180度、270度。分别连接到PIFA阵子
优选地,所述绝缘介质板为聚四氟乙烯板或FR-4绝缘板。
优选地,所述金属辐射阵子由不锈钢、洋白铜或PCB构成。
优选地,所述移相器为共面波导或微带线形式的移相器。
优选地,所述功分器为陶瓷耦合器或者微带线等功率等分相位改进器件。
优选地,所述PIFA阵子,可以是PIFA阵子也可以是dipole阵子。
同现有的技术相比较,本发明提供的一种小型化窄波束天线具有尺寸小巧、波束集中、圆极化性能好、性能稳定,易于量产等优点。本发明不仅克服了单端口馈电的带宽窄,体积大的缺陷,而且简化了多端口馈电系统复杂的缺点,提高了性能,更加适合RFID行业门禁系统的应用。
附图说明
图1是本实用实施例的馈电网络底面示意图。
图2是本实用实施例的馈电网络顶示意图。
图3为本发明实施例的俯视结构示意图。
图4为本发明实施例的金属辐射阵子的结构示意图。
图5为本发明实施例的侧示意图。
具体实施方式
下面将结合附图和具体的实施例对本发明的技术方案进行详细说明。
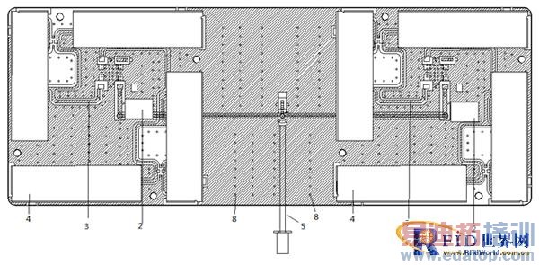
如图1和图2、图5所示,本发明实施例提供的一种小型化窄波束圆极化天线,包括绝缘介质板6、位于绝缘介质板6正面的馈电网络3、位于绝缘介质板6背面的金属底板7、以及安装于绝缘介质板6正面且与馈电网络3连接的四个金属辐射阵子4。
所述绝缘介质板6为矩形,为聚四氟乙烯板或FR-4绝缘板。
所述馈电网络3具有一个输入端和八个输出端,包括若干个相互连接的功分器和移相器,用于将从输入端输入的信号转化为两条四路等幅、相位差依次为90度的信号,分别从四个输出端输出给八个金属辐射阵子4。
所述金属底板7为覆铜层,连接到地。金属底板7是在绝缘介质板6的背面全部铺铜形成的,并设有馈电焊盘,能够使得馈电网络3呈共面波导的传输特性,增加信号稳定性。
具体地,如图3所示,所述馈电网络3由一个陶瓷功分器2、四个微带等功分器和六个微带移相器组成,均印刷在绝缘介质板6的正面。绝缘介质板6的中间设有馈电孔8,所述馈电孔8将绝缘介质板6贯通并与馈电网络3的输入端(即陶瓷功分器2的输入端)直接相连,便于放置馈电接头并用于馈入初始信号。由于陶瓷功分器2为四端口器件,在使用其他三个端口的时候要将第四端口进行负载匹配,本发明实施例中,使用50欧姆的电阻9进行负载匹配。
优选地,在本发明实施例中,所述金属辐射阵子4为PIFA(Planar Inverted-F Antenna,平面倒F型天线)形式的阵子。如图4所示,PIFA形式的阵子包括垂直部分和水平部分,所述垂直部分的下端垂直固定于馈电网络上,垂直部分的上端与水平部分连接,所述水平部分则与馈电网络平行,整体形成一个躺倒的“F”的形状。所述金属辐射阵子4由PCB、不锈钢、洋白铜或其他金属导体材料制成。四个PIFA形式的金属辐射振子4,一方面大大缩小了阵子长度,利于天线小型化,另一方面对天线的稳定性有很大提高。
所述四个金属辐射阵子4按照一定的顺序依次安装在绝缘介质板6正面的馈电网络3上,其高度可调。
本实用提供的一种小型化窄波束圆极化天线,其工作频段可以是RFID的超高频,也可以是433MHz或2.4GHz等频段。可通过调节金属辐射阵子的长度和馈电网络上微带线宽度长度以及阵子距离地板的高度,来大范围或者小范围调节天线的工作频段。
同现有的技术相比较,本实用提供的一种小型化窄波束圆极化天线具有宽轴比带宽,圆极化,高增益,小型化,性能稳定,易于量产等优点。本实用不仅克服了单端口馈电的带宽窄,体积大的缺陷,而且简化了多端口馈电系统复杂的缺点,提高了性能,更加适合RFID行业的应用。
以上所述实施例仅表达了本发明的几种实施方式,其描述较为具体和详细,但并不能因此而理解为对本发明专利范围的限制。应当指出的是,对于本领域的普通技术人员来说,在不脱离本发明构思的前提下,还可以做出若干变形和改进,这些都属于本发明的保护范围。因此,本发明专利的保护范围应以所附权利要求为准。

图1

图2

图3

图4

图5
1、一种小型化窄波束圆极化天线,其特征在于,包括绝缘介质板、位于绝缘介质板正面的馈电网络、位于绝缘介质板背面的金属底板、以及安装于绝缘介质板正面且与馈电网络连接的八个金属辐射阵子;
所述馈电网络具有一个输入端和八个输出端,包括若干个相互连接的功分器和移相器,用于将从输入端输入的信号转化为两个四路等幅、相位差依次为90度的信号,分别从八个输出端输出给八个金属辐射阵子;
所述金属底板为覆铜层,连接到地;
所述金属辐射阵子为PIFA形式的阵子。
2、根据权利要求1所述的小型化窄波束圆极化天线,其特征在于,所述两路等幅,带相位差金属阵子间距约为该频率的半波长。
3、根据权利要求1所述的小型化窄波束圆极化天线,其特征在于,所述四个金属辐射阵子在馈电网络上方沿顺时针或逆时针方向围成一正方形,其中心为绝缘介质板的中心。
4、根据权利要求1所述的小型化窄波束圆极化天线,其特征在于,所述天线在长边方向角度约为45度,远窄与普通微带天线70度的角度。
5、根据权利要求1所述的小型化窄波束圆极化天线,其特征在于,所述绝缘介质板为圆形或矩形。
6、根据权利要求1所述的小型化窄波束圆极化天线,其特征在于,所述绝缘介质板为聚四氟乙烯板或FR-4绝缘板。
7、根据权利要求1所述的小型化窄波束圆极化天线,其特征在于,所述金属辐射阵子由不锈钢、洋白铜或PCB构成。
8、根据权利要求1所述的小型化窄波束圆极化天线,其特征在于,所述移相器为共面波导或微带线形式的移相器。
9、根据权利要求1所述的小型化窄波束圆极化天线,其特征在于,所述功分器为陶瓷功分器或者微带线等功率功分器。
本发明涉及一种小型化窄波束圆极化天线,包括绝缘介质板、位于绝缘介质板正面的馈电网络、位于绝缘介质板背面的金属底板、以及安装于绝缘介质板正面且与馈电网络连接的四个金属辐射阵子;所述馈电网络用于将从输入端输入的信号转化为四路等幅、相位差依次为90度的信号,分别从四个输出端输出给四个金属辐射阵子;所述金属底板为覆铜层,连接到地;所述金属辐射阵子为PIFA形式的阵子。同现有的技术相比较,本发明提供的一种小型化窄波束圆极化天线具有宽轴比带宽,圆极化,高增益,小型化,性能稳定,易于量产等优点。本发明不仅克服了单端口馈电的带宽窄,体积大的缺陷,而且简化了多端口馈电系统复杂的缺点,提高了性能,更加适合RFID行业的应用。
13.56MHz NFC天线,13.56MHz RFID天线设计培训课程套装,让天线设计不再难
上一篇:RFID技术及其在ETC系统中的应用
下一篇:RFID动态帧时隙防冲撞改进算法研究


