- 易迪拓培训,专注于微波、射频、天线设计工程师的培养
基站无线门禁控制系统设计方案
第一章 基站无线门禁方案的提出
由于移动、联通等通讯基站建设的特殊性,基站的位置分布较为复杂,在我国,地形地貌千变万化,应需要城市农村、山川平原都有可能成为基站的驻足点,且一般都是无人值守的,偷盗现象日益猖狂、使基站的室外、室内设备面临盗窃的危险、容易造成基站无法正常地工作、带来无法估量的损失。因此智能门禁管理需求也日趋迫切,而因为网络布线的局限性,传统门禁方案不再适用,无线门禁解决方案应运而生。
谈到无线门禁,人们可能会有认知上的误区,以为无线是指读卡器、控制器、电控锁、出门按钮和门磁之间无需连线,其实这是不正确的。仅就电控锁供电而言,就必须要有线连接电源供电。另外上述所有设备都安装在门附近,相互连接很简单,不需采用无线。本方案所述的无线门禁技术是指门禁控制器与上位管理计算机的组网方式。通常,门禁系统的组网是采用有线方式的RS-485/422总线,较新的产品使用TCP/IP网络进行联网,这两种方式在基站门禁管理应用中显然存在局限性,RS-485总线通讯距离不够远,TCP/IP网络布线线材投资巨大;现在我们提出的无线门禁系统即是以无线方式将各个门禁控制器与上级管理电脑连接起来,组成一个无线门禁网络,而这个无线方式利用现成GSM通讯网络,通过短信来实现传输数据,有手机信号的地方就可以联网通讯。
第二章 系统概述、设计原则和功能特点
一、系统概述
Kingkang系列门禁管理产品采用当今最先进的数字电子技术、识别技术、无线通信技术以及网络技术,把智能识别、计算机网络管理、数字监控集于一体的智能门禁,将门禁管理推向一个新的世界。在本方案系统中,我们将采用射频卡门禁机将各通道(这里主要是基站门)的进出管理进行集中管理和分散处理,我们可将感应卡作为基站维护人员和巡检人员进出移动通信基站的凭证,可通过电脑生成移动基站门禁通道安全方面进出记录报表,并可通过接入环境检测设备接入联动设备,实时传递报警信息,确保基站稳定运行。
二、设计原则
由于安全性和高效率管理的需要,基站门禁系统的设计应遵循下列原则:
系统的实用性
基站门禁系统的内容应符合实际需要, 建立系统或改造方便简单,使用便捷;软件操作简明容易上手,数据保存移植方便。
系统的稳定性
由于基站门禁系统是一项不间断长期工作的系统,基站的安全稳定运行更是与人们的生活息息相关,所以系统的稳定性显得尤为重要。要求系统要有一年以上市场的成功应用经验,拥有相应的客户群和客户服务体系。通讯方面,该系统采用的无线联网方式是基于GSM移动通讯网络,有手机信号的地方即可保证通讯稳定。
系统安全性
基站门禁系统中的所有设备及配件在性能安全可靠运转的同时, 还应符合中国或国际有关的安全标准, 并可在非理想环境下有效工作。强大的实时监控功能和联动功能,充分保证使用环境的安全性。
系统可扩展性
随着门禁系统的技术不断向前发展, 用户需求也在发生变化, 因此基站门禁系统的设计与实施同样考虑到将来可扩展的实际需要, 亦即可灵活增减或更新各个子系统, 满足不同时期的需要, 保持长时间领先地位, 成为实际应用的典范。系统设计时,对需要实现的功能进行了合理配置,并且这种配置是可以改变的,设置甚至在工程完成后,这种配置的改变也是可能的和方便的。系统软件根据开发商符合不同历史时期市场的需求进行相应的升级和完善,并免费为相应的应用客户进行免费的软件升级。同时,可以扩展为考勤系统、巡逻管理系统等一卡通工程。
系统易维护性
基站门禁系统在运行过程中的维护应尽量做到简单易行。系统的运转真正做到开电即可工作, 插上就能运行的程度。而且维护过程中无需使用过多专用的维护工具。从计算机的配置到系统的配置,前端设备的配置都充分仔细地考虑了系统可靠性,并实施了相应的认证.我们在做到系统故障率最低的同时,也考虑到即使因为意想不到的原因而发生问题时,保证数据的方便保存和快速恢复,并且保证紧急时能迅速地打开通道.整个系统的维护是在线式的,不会因为部分设备的维护,而停止所有设备的正常运作.
总而言之,该系统能够更方便、更安全、更可靠地适用基站的管理和监控。
三、主要设计依据规范
1. 国际综合布线标准 ISO/IEC11801
2.《民用建筑电气设计规范》JGJ/T 16-92
3.《中华人民共和国安全防范行业标准》 GA/T74-94
4.《中华人民共和国公共安全行业标准》 GA/T70-94
5.《监控系统工程技术规范》 GB/50198-94
第三章 无线基站门禁系统结构和配置
一、系统的功能和特点
无线基站门禁系统除了通道控制管理功能外,更增加了环境监测和设备联动功能,是无人值守基站、机房的最佳选择:
1、可以提高基站维护效率,管理更加规范有效,实时监控事件,减少维护管理人员负担。
2、一张感应卡可以代替所有的基站门钥匙,杜绝钥匙管理的混乱;且一张卡片可具有不同的通行权限,持授权卡进入其职责范围内可以进入的基站。所有的进出情况在电脑里都有记录,便于针对具体事情的发生时间进行查询,落实责任。
3、如果员工的感应卡遗失,可以在系统内即时挂失删除授权,这样即使其他人捡到了该感应卡也无法进入基站中进行破坏,这样相对与普通机械锁要方便得多,您不必为了安全起见重新换锁,为每个人重新配钥匙。对于辞职或开除、离开的人员感应卡可以回收卡片再加利用,也可删除授权,因为感应卡不可复制,所以也就不用担心离职后的人员再进入基站有所图谋。
4、采用先进的国际内部加密协议,外人无法通过机械或其他高科技方法打开您的电锁进入您的场所。
5、特殊情况时可以进行软件强制性操作,可以通过软件的功能强制门关闭,这样即使授权的持卡人员也无法进入,过后,可以通过软件恢复系统正常。
6、基于Windows的全中文操作系统,界面友好,操作方便简单。普通文员就可以胜任相应管理软件操作,更别说运营商专业的技术人员了。
7、系统扩展性好,具有无线联网和有线联网功能,您可以随时以低成本升级增加新的控制门。
8、建议采用原装全天候读卡器,防水防静电,确保系统的稳定运行。系统运行时无需连接专用电脑,停电时系统信息不遗失,并可以配备UPS后备电源,维持系统的正常运作。优质的产品和完善的售后服务体系免除您的后顾之忧。
9、环境监测和设备联动功能可以随时监测基站环境情况,通过联动设备的接入可以即时响应,同时将报警信息上传至管理中心电脑和报警管理手机,确保基站的安全稳定运行。
二、功能管理结构模式
基站无线门禁的基本功能和普通门禁相差不大,具有多种构成模式,具体如下:
模式一:单向感应式 (进门读卡器+控制器+出门按钮+电锁)
使用者在门外出示经过授权的感应卡,经读卡器识别确认合法身份后,控制器驱动打开电锁放行,并记录进门时间。按开门按钮,打开电锁,直接外出。所有操作通过短信实时上传至管理中心电脑。
这种模式安全级别较低,出门记录无法对应到人。
模式二:双向感应式(进门读卡器+控制器+出门读卡器+电锁)
使用者在门外出示经过授权的感应卡,经读卡器识别确认身份后,控制器驱动打开电锁放行,并记录进门时间。使用者离开所控房间时,在门内同样要出示经过授权的感应卡,经读卡器识别确认身份后,控制器驱动打开电锁放行,并记录出门时间。
安全级别较高,不但可以有效地防止外来人员的非法进入,而且可以查询最后一个离开的人和时间,便于落实责任提供证据。
模式三:卡+密码式(进门带键盘读卡器+控制器+出门读卡器+电锁)
使用者刷完授权卡后,必须输入正确的密码,才能开门。密码是个性化的密码,即一人一密码。这样做的优点在于,安全性更高,即使该卡片遗失,给人拣到也无法进入,还需要输入正确的密码。
这种方式不但要进行卡的验证,同时也要进行密码验证,当两个验证都有效的情况下才能通过验证。
模式四:多重卡开门方式(进门读卡器+控制器+出门读卡器+电锁)
进入基站需使用多张授权卡(2—6张可选),经感应刷卡识别有效后方能进入;
多重卡开门可选择不同权限来组合,对于具有中枢设备重要基站来说,这种方式安全性最高,但最少需要两人同行来实施。
模式五:远程遥控开门
通过管理中心软件远程开门或通过管理手机发送指令远程开门,这种方式主要起辅助开门作用。
三、基站无线门禁基本组成部分
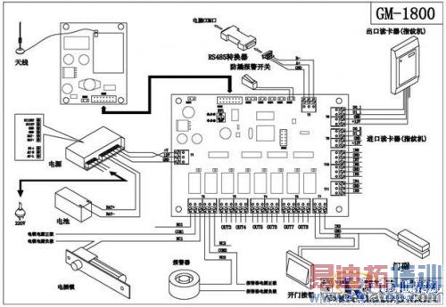
1.无线门禁控制器:
无线门禁控制器GM-1800由稳定的开关电源、控制板、短信收发模块三部分组成;控制板可接2个读卡器,8路开关量输入、8路继电器输出、4路AD输入接口;短信收发模块负责与管理中心电脑上安装的无线综合管理软件通讯。
2.无线门禁综合管理软件:
通过电脑对所有单元进行中央管理和监控,进行相应的时钟、授权、环境监控、信息统计等管理工作。
3.管理中心电脑短信收发模块
负责与各个无线门禁控制的通讯,是短信发送接收终端。理论上每个短信收发模块都能和N个无线门禁控制器手机号码通讯,但考虑到实际应用操作和系统的稳定性,建议每个短信收发模块管理无线门禁控制器在50台以内;而每台管理电脑可以接多个短信收发模块。
4.手机SIM卡
每个无线门禁控制器需要配备一张手机SIM卡,管理中心短信收发模块同样需要一张手机SIM卡。
5.管理手机
系统可以针对每个无线门禁控制器设置除管理中心短信收发模块所有的管理手机卡号外的另4个手机号作为管理手机,作为重要负责人可以即时接收到无线门禁控制器发出的报警信息,并可发送相关指令直接操作无线门禁控制器。
6.感应卡:
感应卡外形多种多样,可任意选择,卡内芯片写有32位永无重复的代码。
7.读卡器:
读卡器是读取感应卡的控制部分。内藏有无线电发射天线,当有感应卡接近时能接收到卡片发送的代码等信息,读卡器分析确认是有效卡后,将代码传送至控制部分。
注:重要通道可以采用指纹采集仪,安全性更高。
8.电锁:
电锁用来取代机械锁,由控制器发送开门信号后,电锁可自动打开。
9.门磁:
接触检测器用来检测门的开关状态,从而确定门开是否有效或被批准,再由控制器触发报警信号。
10.开门按钮:
出门可以设置为按按钮出门。
11.电源:
提供系统运作电源和电锁的执行结构的电源供应,同时电源可以接入后备电池确保停电期间系统能正常运行;控制器能提供主要电源12V供电中断报警。
12、其他
无线门禁控制器具有联接环境监控设备的功能,通过软件可任意设置联动报警参数,布防撤防,实时传递相关信息。
四、系统连线图



无线管理系统应用拓扑图
六、布线简明规范
1. 读卡器到控制器的线建议采用6芯多股线(单芯截面积大于0.3平方毫米),距离不要超过100米;
2. 按钮到控制器的线建议采用两芯线(.(单芯截面积大于0.5平方毫米)
3. 电锁到控制器线建议采用两芯电源线(单芯截面积大于1.0平方毫米),如果需要获取门状态即门磁接线,加布两芯. (单芯截面积大于0.3平方毫米)
4. 控制器需接在有地线的插座上,建议机箱对建筑地进行良好的接地。不要和其他大电流设备共用一个插座。
5. 控制器自带的GSM天线最好延至信号较强的地方,确保通讯正常。
第四章 无线综合管理系统软件简介
Kingkang无线综合管理系统软件是移动基站、电力机房、银行金库等专用门禁管理软件,可实现门禁、巡查、防盗、环境监控等功能。
一、门禁管理功能
可添加设置管理无线门禁控制器,通讯方式根据不同设备可选GPRS、SMS、串口、以太网4种方式,其中GPRS为无线网络,SMS为短信方式,串口为RS485总线方式,以太网为TCP/IP方式,本方案中推荐的产品为SMS短信方式。
软件中可设置胁迫码功能,应用与安全级别较高的场所,并可添加多个管理手机号码和报警手机号码;作为门禁管理,可以添加部门、人员资料、发送授权卡号、实时接收信息、查询打印信息报表等。
二、巡查管理功能
利用既有的无线门禁设备作为巡查点,在软件中添加电子地图,将
巡查点置于相应位置,可实时接收巡查记录、通过电子地图显示巡查点状态;可设置巡查路线,巡查班组,查询巡查信息,打印导出报表等。
三、防盗管理功能
无线门禁设备具有8路开关量输入信号检测,除开门按钮和门磁检测为固定输入外,其它6路输入可在无线综合管理软件中由用户编写输入设备名称,任意选择设置;既可作为防盗设备的接入端,如红外探头、玻璃破碎侦测等,也可作为室内环境检测设备的接入端,如烟感探头、水浸检测等;根据需求对每路输入布防撤防,可分时段进行管理。
同时,通过联动表设置,可针对任意一路输入信号对8个输出设备实施联动,其中门锁和报警输出为系统固定项目,其他6个输出接口可由用户自由选择设置,所有输出均可以设定是否联动、联动时间和动作次数,组合方便,能最大的满足用户需求。所有信息均可通过软件报表打印、导出。
四、环境管理功能
无线门禁控制器具有四路模拟检测输入端,其中一路系统设定为温度和湿度检测,可以实时监控环境温度和湿度,通过软件设置报警上、下限参数,实现温湿度报警功能,同时能通过联动表的设置,即时启动联动设备运行,降温除湿。
该功能主要应用在重要的机器设备房,既可作为环境主控设备也可作为辅助控制应用。所有信息均可通过软件报表打印、导出。
第五章 基站无线门禁控制器的适用范围和典型案例
一、基站无线门禁控制器的适用范围
前面已经提到过基站无线门禁控制器在移动通讯基站上应用,实际上,根据无线门禁控制器使用特点,我们可以把产品的应用范围拓展一下。移动通讯基站的主要情况有下面几点:
1、距离管理中心远,几公里到几十公里;
2、分布零散,城市乡郊各个角落都可能成为控制点;
3、管理人员定期巡查维护检修,通行人员流量很小;
4、控制点内设备重要,专业人员管理,但一般无人值守;
5、紧急特殊事件难以及时向管理人员和上级管理人员反映信息;
由此,类似于以上情况的使用环境还有:
1、电力机房;
2、银行分支网点金库;
3、银行、派出所等特殊职能机构的枪弹库;
4、油田钻井、粮食仓储;
5.城市污水处理站.
6、连锁酒店机房等。
这些地方的重要性不容质疑,它们本身的功能也各不相同,但对于无线门禁系统来说具有相当的一致性,我公司的无线门禁系统完全适用以上所列举的使用环境的需求。
二、典型案例
珠海电视台、电台 50个门的联网门禁及10个点外设基站门禁系统
厦门移动基站 150个点的GSM无线联网基站门禁
大连发现王国游乐园 50点无线联网门禁系统(大连天天安全系统工程有限公司 施工及维护)
佛山电力 30个点的GPRS无线联网基站门禁
湖南农村信用合作社 200个点的GSM无线联网基站门禁及后续项目近1000个点
如何成为一名优秀的射频工程师,敬请关注: 射频工程师养成培训
上一篇:中兴RFID移动一卡通系统设计
下一篇:射频通信中运用DAC和ADC技术

